k8凯发国际

15811394589
4008607355
bjysfy@126.com
生物除臭技术

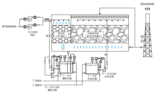
生物滤床除臭技术主要是利用微生物除臭,顺利获得微生物的生理代谢将具有臭味的物质加以转化,使目标污染物被有效分解去除,以达到恶臭的治理目的。生物除臭的基本原理是利用微生物的新陈代谢,将臭气中的臭气污染物转化为简单的二氧化碳、水、硫酸根等无机物,从而从臭气中去除臭气污染物。比如芳烃、醇类、酸类等恶臭污染物可以生物降解成二氧化碳和水;含氮化合物可以顺利获得微生物的硝化和反硝化转化为硝酸盐或氮气;含硫化合物可以顺利获得微生物转化为环境中相对稳定的硫酸盐。

 

生物滤床除臭具体过程是先将人工筛选的特种微生物菌群固定于填料上,当污染气体经过填料表面初期,可从污染气体中取得营养源的那些微生物菌群,在适宜的温度、湿度、pH值等条件下,将会得到快速生长、繁殖,并在填料表面形成生物膜,当臭气顺利获得其间,有机物被生物膜表面的水层吸收后被微生物吸附和降解,得到净化再生的水被重复使用。污染物去除的实质是以臭气作为营养物质被微生物吸收、代谢及利用。这一过程是微生物的相互协调的过程,比较复杂,它由物理、化学、物理化学以及生物化学反应所组成。

 

f2152f68b529587107ebbd4971f8025967871d1414a5d.jpg a66d7ee4993f31a7a6a814b9e3809c46677b4f2848985.png

 

若您需要进一步分析更多污水处理技术或取得此类污水处理的定制方案
请联系我们 咨询热线